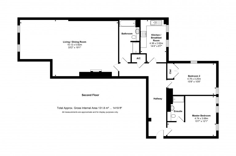
Forming part of this prestigious gated development of individual apartments within a converted Victorian building, this exceptionally spacious two bedroom, two bathroom second floor flat ,offers over 130sqm of living accommodation, and is set amongst well kept communal gardens, and benefits from two allocated car parking spaces.
Located on the second floor the property is accessed via stairs or passenger lift from a secure communal hallway. A large private hall provides a fitting entrance to the apartment, with doors leading to all principal rooms. An impressive living room extends to over 10 metres in length, offering plenty of space for both a living and dining area, the property enjoys a good sized kitchen with built in appliances and ample space for breakfast table, a master bedroom with an ensuite shower room, a further double bedroom and a four piece family bathroom. The accommodation is both double glazed and gas centrally heated and features high ceilings throughout that enhances the feeling of spaciousness offered by this exceptional home. Outside, the property is situated amongst well kept communal grounds and gardens and benefits from two allocated parking spaces.
Forming part of a prestigious development of individual character apartments, Florence Ct is located within a short walk of Sainsburys as well as Knaphill village centre which offers an array of eateries and village amenities which include the Post Office and supermarkets, highly regarded schools and local transport links to Brookwood station plus Woking town centre with its station, theatre and cinema.
The following lease information has been provided by our client, any buyer is advised to seek their own legal advice regarding the property tenure.
Lease - 125 Years from 1999 (approx 98 years remaining).
Service Charge - £5052.57 for 1/05/2025 - 30/04/2026
Ground Rent - £336 per annum
These details are thought to be materially correct though their accuracy is not guaranteed and they do not form part of any contract. All measurements are approximate and we have not tested any appliances, electrical or plumbing installation or central heating systems.
For further details on this property please give our office a call
01483 590 059
Brookwood Rail Station - 1 miles
Worplesdon Rail Station - 2.3 miles
Woking Rail Station - 2.7 miles
Bagshot Rail Station - 4.6 miles
Longcross Rail Station - 5 miles
West Byfleet Rail Station - 5.2 miles
Simply fill out the form below or alternatively call us on 01483 590 059
" I just want to take this opportunity to sincerely thank you for everything you have done for me this week! Never have I been in a rental property where everything has been extremely quick...
MG - February 2026
" Thank you so much for everything you’ve done so far. The Manners team have been absolutely amazing so far & we feel in very safe hands. We really appreciate the fantastic end to end...
JW & PM - January 2026
"I just want to say thank you to you and your team. The rental side was, for me, easy and professional to work with, and on the sales side I can only say the same — your employees had the...
PE - December 2025
"I rented a studio in Woking three years through Manners Residential and it was a fantastic experience! My main contacts were Sarah and Nicky, who were always friendly, professional and very...
TB - August 2025
"We are so happy with the service and treatment we have received from the whole Manners team since we moved in , and even beforehand. All our queries have been resolved in a timely and friendly...
BG & EP - August 2025
" Great Team! Very happy with their service! Nick, Sarah, and the team were great to work with. They outlined the process, went over the details lettings, answered all of my questions and kept...
ZQ - June 2025
" We chose Manners Residential to sell our property as we have had a long standing relationship with them and trust them. This was our first sale of a buyto property and Nick Griffiths was...
KT - May 2025
" Manners are excellent agents who have been looking after my property many years now I have been living abroad. They found excellent tenants for the house, who have taken great care and...
MM - April 2025
"Ella-May, employee of Manners Residential, very helpful and informative in my dealings with renewing my lease. Good show and keep up the good work."
JF - March 2025
"James Manners & the staff at Manners Residential are a credit to the people of Woking. If you are selling a property nothing is ever to much trouble they support you 100% from the first stage...
PM - March 2025
"Had a great experience buying with Manners, smooth process with clear communication throughout."
CD - March 2025
"James Manners and his team provided thoughtful, professional advice and support during a protracted sale process."
CS - February 2025
"Excellent letting agents. Always helpful, professional and friendly. Have used Manners many years and would recommend to anyone looking to rent. Great staff, Nick being the one we have used...
RB - January 2025
"Many thanks to you and your team for your assistance in finding a new tenant so quickly."
JT - January 2025
" An excellent service, as ever, from all at Manners Residential. A very professional team who got our rental flat refurbished between tenancies in no time. They also secured new tenants very...
MS - January 2025
" We have used Manners Residential for the last 15 years. The Manners has provided outstanding service all these time. This is the rare combination of professionalism and friendly personal...
IR - December 2024
"I would like to express my personal thanks for the service provided by the Manners team over the whole time we were renting out the property. I always felt I was in good hands and that...
HP - November 2024
"Just a quick note to say a big thank you for all your help over the years (18 in fact!) in managing ***** on my behalf. You did an amazing job and I am extremely grateful to you both and your...
NB - November 2024
" Small team but huge achievements! Met Michael, Jack and Sarah and I was surprised to see that they actually substituting a whole operation team. Three of them doing the work of a whole offices...
DS - November 2024
"As a landlord, I have been extremely impressed with the exceptional service provided by Manners. Their professionalism, dedication, and expertise have made the process of letting my property very...
RV - July 2024
" Just had a viewing with Michael from Manners Residential and I can say the best viewing experience I’ve ever had. Michael was professional, respectful and efficient. He took great care...
ME - June 2024
" Sarah responded very promptly and dispatched a professional to the property to assist with the pest control issue."
LH - May 2024
"T hank you for all the work in securing the tenants and for completing all the necessary paperwork very efficiently and swiftly. W e would like to thank Manners for not only securing us...
NY - April 2024
" I've been with you guys nearly 20 years now so thanks for the excellent service"
BG - April 2024
"Thanks for everything you have done over the last four years we have rented our property. You are the BEST team"
KL - March 2024
"...Y our team has been hard at work! Within a week , they marketed and got an offer for our apartment. JamesW and Nick have been most supportive and efficient. Thank you to both."
NY - February 2024
" Excellent help throughout our tenancy agreement process to move into our home. Always happy to answer our questions and a generally very pleasant team!"
NC - February 2024
" The sign of a great company is when they accept feedback on the chin and address concerns. Have worked with the Manners team for 18 years, and most recently they didn't deliver their normal...
SL - February 2024
" Always quick to respond to queries and gets the job done when we have any issues."
RM - February 2024
"Nicky & Sarah dealt with serious water issue very promptly and had situation resolved within a day, which included a plumber visit and a Thames water visit when the issue was escalated"
TW - January 2024
"Great customer service, and communication. Whole process gone smoothly. D efinitely recommend."
MG - December 2023
" Manners have made the move really smooth and and stress free. Sophie and Suzi were really helpful, really good communication throughout the whole process and lovely and friendly throughout....
CF - November 2023
" We are very pleased with the excellent service provided by the whole team at Manners. A tenant was secured within a very short period. Communication was always prompt which makes a lot of...
TY - November 2023
"I am a tenant who had sudden severe plumbing issue, Sarah was amazing in responding with the solution, in less than 2 hours from reporting the issue a drain specialist was at the property and we...
SG - October 2023
" I am pleased to recount the incredible experience i had with an exceptional realtor who went above and beyond to help us finding the perfect rental home,right from our very first interaction,...
EN - September 2023
" Kind agent who showed me the property thoroughly and gave all his time to answer all of my questions with content. Relatively quickly to get in touch with as well with no issues. Everything done...
RA - August 2023
"Can I also say a huge thank you to you and the team as this has been the loveliest moving process and the property is in such a nice clean condition."
TW & CO - July 2023
"James & Nick along with the team were excellent from start to finish. Sophie kept us updated providing good feedback throughout the sale process. Despite the market being tough, the sale...
BR - July 2023
"Great service, Sophie was excellent from arranging the short notice visit, to really understanding what we wanted in our new home. The paperwork went swiftly and no issues along the way. We are...
MA - July 2023
"Compared to my previous experiences with other agents, which often felt like a hands-off approach of "Here's your key. Figure it out yourself," Manners Residential truly stood out with their...
RL - June 2023
"Time is the test of any relationship. I have been a Manners Residential customer since 2004 and I would not use any other agent in Woking. I am grateful to James and his team for their friendly...
AB - June 2023
" I wouldn't pick out just one staff member as I have only ever had excellent service with EVERY member of staff at Manners in Woking. They are helpful, supportive and charming. Over 20 years we...
AM - June 2023
"I’d like to take the opportunity once again, of thanking you and your colleagues for your professional services with respect to this tenancy."
TD - June 2023
"Thank you so much for all your help these years. You were the best! We wish you all the best and hopefully we will meet again in the future"
MF - June 2023
" Nick and the whole team at Manners have been very supportive, professional and communicated both efficiently and clearly throughout the whole process of letting my first property."
DF - February 2023
"Manners have managed the rental of my flat since 2007 and whoever I speak to at Manners I always receive excellent service. I would like to highlight Nicky, as I have had numerous conversations...
GB - January 2023
"Excellent service, great customer service, seamless communication, responds to any queries within a day. E veryone is polite, professional and friendly. My queries were answered straight away,...
SS - January 2023
Thank you very much for making our buying and letting experience a great one. Each one of you helped & supported us along the way. Our slogan will be "Buy with Ease & Let with Ease use...
NY - November 2022
" The Team at Manners found new suitable tenants for my rental property in a short space of time . All of the team are very helpful and will do anything they can in every possible way to support...
CC - November 2022
"Absolutely excellent agents. Run with integrity, professionalism and efficacy. First choice in Woking without a doubt!"
SM - November 2022
"I have dealt with a fair few estate agents before and none of them have been as helpful as Manners, in particular I have to say Sophie and Suzi have been amazing from the start. They’re...
JN - October 2022
"We have successfully sold our house in Woking through Manners Residential. From our first contact with Nick Griffiths through to exchange of contracts he has been there to advise, been...
PM - October 2022
"Manners provide me with a great service. Long may it continue."
AP - July 2022
"We have viewed two potential future homes and after the second viewing have found the best place for us. Manners Residential really listened to our requirements and tried to meet all of our...
EK - July 2022
" I have been with Manners Residential for ten years - they are excellent. I trust them completely for their efficiency, service and knowledge of the letting sector. I feel supported and...
AL - July 2022
" We had a great experience with Manners; after being let down by a few agencies we were lucky to view the property we did. The booking was confirmed on the day and Nick was incredibly helpful and...
EB - June 2022
" Manners Residential performance has been great all the way along during my tenancy application process. First, they have found time to allow an extra viewing not booked in advance which has...
LC - May 2022
" I would give the very highest recommendation for Manners Residential! Manners have handled the letting of our home for nearly 20 years and during that time, there has not been a single...
CC - May 2022
" I could not recommend Manners Residential enough. So helpful. From finding vetting new tenants to going above and beyond. To helping sort problems sorting contractor's keeping me informed...
CR - May 2022
" I have been using Manners Residential for over 10 years and they continue to offer a very professional service, from finding new tenants quickly to finalising contracts. There is always a member...
CJ - May 2022
"Couldn’t praise them enough, myself and my partner are first time renters and our experience was smooth and stress free thanks to Manners! They answered all our questions and went above...
SA - May 2022
"We would like to say a big, big "thank you" to you all at Manners for everything you have done for the various combinations of the family over the last few years. We have always found those at...
E&PM - May 2022
" Just a quick email to say a big thank you to you and your team for all your help with renting out **** **** so quickly and efficiently for us. I have heard a lot of positive feedback about the...
JK - April 2022
"Ten years ago my dad retired and decided to rent out his studio flat. I did some shopping around and recommended we go with Manners as the letting agent. That has proved to be an inspired...
MN - March 2022
"The place is amazing, I’m looking forward to getting settled in. I just wanted to say thank you so much for getting everything organised. As you both probably know very well, this is...
SJ - November 2021
"This was my first time moving by myself and outside London. The whole team has been very professional, attentive, helpful and responsive. In less than a week I got approved for the flat and was...
RJ - October 2021
"Dear Danielle, Suzi and all the Manners team in Woking, Thank you very much for your help and support. You are an amazing agency and I wanted to show my appreciation to you. Stay Safe xx "
PG - October 2021
"Manners have been looking after our rental house for approx 17 years. Long-term tenants moved out a couple of weeks ago and after some minor repairs and decorating jobs, all carried out with my...
HP - July 2021
"You may be aware that our 18-year association with your company has now come to an end as we have sold *** Alwyne Court, Brewery Road. We would like to take this opportunity of thanking you and...
NJD - July 2021
"The Team at Manners are extremely helpful and will do anything they can in every possible way to support their customers. I can definitely recommend them."
CC - April 2021
"Friendly, approachable and not stuffy. Were helpful in all ways with re letting my property and gave good advice, with good communication. Convenient location to my rental...
LL - April 2021
" I have used Manners Residential for decades and have always found them polite, professional and practical. I am grateful for the assistance they have provided to my family over the years."
SS - February 2021
"First of all thank you very much for all the staff in Manners Residential who gave wonderful service during our tenancy period. It was tough 2 years with situation of Pandemic. But my family...
JJ - February 2021
"I can’t stress enough how pleased I am with you at Manners that you have yet again found such lovely people to rent my property! Thank you ever so much!"
MM - January 2021
"We want to thank you for the tremendous care you've taken of our property over the last decade! It has been so nice not having to worry about the day to day management of the flat while living...
SD - January 2021
"Thank you so much for all you did to look after our house for us over the last 7 years. Finding tenants, dealing with tenants.... and the incesant needs of a creaky house! We are both so thankful...
CF - January 2021
"During our two tenancies with Manners we found all members of the team to be extremely helpful and quick to reply. We didn't have many problems with the properties we stayed in, but when...
NH - January 2021
"Thank you for all your help in finding tenants for 3 of our properties this year! So professional, so thorough, so pleasant to work with!"
KH - December 2020
"We want to put on record once again the fabulous service we continue to receive from you and your team. We can’t tell you how much we appreciate it."
AN - December 2020
" The Team at Manners really have been fantastic, I highly recommend them!"
WD - October 2020
"I had a privilege of being one of your tenants. I have no words to thank for the extraordinary work, involvement, prompt response, brilliant comunication, kind team with a high human...
MS - October 2020
"Also taking the opportunity I would like to thank you for all the help over the years. I must say that house maintenance (especially emergencies) was always taken very seriously and...
LK - October 2020
"I recently instructed Manners to act for me in a Probate sale. I have to say the service was fantastic from start to finish. My main contact was Dani who kept me informed and updated regularly...
CG - October 2020
"Please let me use this occasion to thanks all Manners staff for support during the last two years of tenancy, please forward my thanks for all staff and I wish that I can soon back to the estate...
NR - October 2020
" They have delivered consistently excellent, friendly, helpful, service over many years. And have rapidly resolved all tenant and property issues."
IK - September 2020
"I wanted to get in touch with you to say thank you. I have been letting the property for well over a year now and your team have been absolutely fantastic. I really feel that you kept to your...
SP - September 2020
"Thank you and the team so much for all they help you have given me over the 5 years the house was rented. I have been grateful you have always been looking after the house especially as...
PB - August 2020
"Absolutely excellent agent. Fast,friendly and efficient. Been renting out one of our properties through them for over 14 years and recently re-let another one. This served to remind me how good...
RW - July 2020
" As a landlord I have used Manners Residential as my letting agent for many years and continue to be delighted with the level of professionalism and consistent high quality of service with which...
PD - July 2020
"All of your team that I have dealt with have been extremely helpful, efficient and friendly. I know it is easy to take this for granted but having re-let the apartment recently it is a reminder...
RW - July 2020
"I have used Manners for many years and would not want to use anyone else. They are extremely professional, I have never had my property empty and they have good communications."
PC - July 2020
"It is 20 years this month since my first tenant moved into my flat. In those 20 years, the friendly helpfulness and highly professional service from Manners has never failed. Landlords and...
KC - June 2020
"Very quick, professional service. Our agent Nick was very helpful - team had great communication going on and we always had someone to talk to if needed. Very happy and satisfied with the whole...
AD - June 2020
"Nick was very open to help from the start, we felt really taken care of during the whole process. Brilliant work- keep it up!"
HD - June 2020
"I've been having a great experience. I was looking for a property to rent and they were very helpful. They answered all our doubts quickly during the process. Nick, who has shown the place to...
BZ - June 2020
"From the outset we communicated with Nigel mostly via email which he was prompt in replying to, all questions were answered. Once our offer had been accepted Jennifer took over finalising...
BG - May 2020
" I have been tenant dealing with Manners for a little over a year, and have been pleasantly surprised in general by the very high quality of service (sadly somewhat rare of letting agents in my...
GB - February 2020
"I have known Nick for over 16 years and he is friendly, caring and professional. I would happily recommend him as he has always delivered for me."
KT - February 2020
"Excellent communication and a lovely atmosphere in the shop. Had a really positive experience the entire time and would highly recommend over other agencies we have previously used."
KW - February 2020
"Manners Residential has really professional approach when it comes to lettings. I came across an ad on leading property website and called for a viewing. Instead of rushing into showing me...
SJ - February 2020
"I have worked with Manners Residential for many years and they are very professional and friendly from the Sales Team to the Finance Department. They are extremely helpful and I would have no...
HS - December 2019
"I have been using Manners Residential for the past ten years, from renting properties to selling my home, and they still come up top of my list out of all the estate agents in Woking. They are...
JL - December 2019
"I just had to write a few lines to thank Manners Residential for being so incredibly professional, competent and knowledgeable whenever I have dealt with them. As a Landlord for some 15 years...
TS - November 2019
"Excellent professional service from James, Nick and their team. As usual they managed to find a suitable tenant within a short time."
RR - October 2019
"I have used Manners for several years letting out my property and have found them very professional and a caring agent to myself and my tenants. They provide a personal service, highly...
KB - October 2019
"Lots of direction and support to get flat up and ready for renting out again. All t's crossed and i's dotted."
S - October 2019
"Fantastic support and help in finding a new place to rent. Nick has been a true magician in sorting everything out in such a short time. Thank you"
M - October 2019
"Using Manners takes the worry and stress away from owning a rental property. They are on hand to deal with problems and contact us efficiently when it's necessary. Would recommend Manners to...
PM - October 2019
"We have used Manners Residential as managing agents for our three flats for many years and have been very happy with their service. They are the ideal size business - large enough to have the...
GS - September 2019
"I've been using Manners Residential for 8 years. This is the best agency I came across. Great work guys. Keep it on."
IR - September 2019
"I have faithfully used Manners as my letting and managing agent and have not been left disappointed in the 13 years of employing them. They are professional and if I needed any advice they...
JL - August 2019
“We have let 2 properties in the Woking area, through Manners Residential , the last property was on a 5 year renewed arrangement with full management from the Manners team. We had also let...
KA – July 2019
"All the staff at Manners are extremely helpful and professional. James was a particular gem when I was a rookie landlord, giving me lots of advice and pointers and assisting me through the whole...
NB - June 2019
"I have been using Manners Residential for 10 years and have found them to be very friendly and always helpful"
SS - June 2019
"Nicky was very pro active in organising the new heater & hob to meet higher standards of health and safety. Also managed the re decorating. Initially where the old tenant had used non neutral...
JA - June 2019
"I have used Manners Residential as my letting agent since 2010. They fully understand the need to manage the relationship between landlord and tenant in a mutually beneficial way. I rely upon...
PS - May 2019
"Manners have acted as my lettings agent for nearly six years now and they have been fantastic. They also managed the sale of one of my properties successfully. Every member of the team is...
MA - May 2019
"Been with Manners for well over a decade. They are always highly professional, my lodgers are always of a high quality and they deal with my problems at a moments notice. Nick has spent years...
BG - May 2019
"We have been relying on Manners Residential for over 15 years and their knowledge, professionalism and hard work have made our rental business a successful one. We depend on Nick Griffiths and...
KT - May 2019
"The team at Manners Residential have for many years provided me with excellent support and service with my property lettings."
CBP - May 2019
"The whole of the manners team were very accommodating when I was amidst a search for a new property to rent. Danielle and Mark both gave plenty of time to answer any questions I had, as well as...
RJ - May 2019
"I've been Manners to handle the renting of my home for four years now since I moved overseas for work. In all that time, Nick and the rest of the team have provided a courteous, professional...
SA - April 2019
"The experience I've had with Manners Residential has been fantastic. To show me around potential properties to rent was Danielle who was lovely. We were visiting a few properties that day and she...
CH - April 2019
"The Manners team have provided a very professional and efficient service over the last 8 years. They have always understood my requirements for finding tenants and given sound advise about the...
JC - April 2019
"We used Manners Residential to let our flat in Woking. The tenant had been a model tenant for years until recently when he had severe health issues which resulted in the other residents in the...
MF - April 2019
"All the staff I have dealt with at Manners have provided an excellent service being helpful and professional in dealing with the end of a tenancy which had a problem with the outgoing tenant. and...
EC - April 2019
"Following an introduction to James Manners, Nick Griffiths has been our main contact at Manners, for some 15 years. We have found Nick, not only professional and experienced, with a profound...
JC - April 2019
"Mark was fantastic at leading us through our rental process - me partner and I were in a position where we needed to make a quick decision on a property, and Mark was able to arrange viewings at...
MG - February 2019
"Manners Residential has let and managed my property for a number of years and I have always found the whole team, and in particular Nick Griffiths and Nicky Manners, extremely helpful,...
EL - January 2019
"Having struggled with previous letting agents I was worried when it came to move however Jeniffer & Mark provided fantastic customer service, the entire process was quick and easy. They are...
OH - January 2019
"Extremely friendly, professional and helpful estate agents. We had no problems with them and they are always willing to help when needed. Will definitely use again and will recommend them to...
BP - January 2019
"Manners Residential are a great, friendly and helpful estate agents. They have been completely professional and helpful and are extremely easy to communicate with. Nothing is to much trouble and...
BN - January 2019
Holding Deposit (per tenancy) One week’s rent.
This is to reserve a property. Please Note: This will be withheld if any relevant person (including any guarantor(s)) withdraw from the tenancy, fail a Right-to-Rent check, provide materially significant false or misleading information, or fail to sign their tenancy agreement (and / or Deed of Guarantee) within 15 calendar days (or other Deadline for Agreement as mutually agreed in writing.
Security Deposit (per tenancy. Rent under £50,000 per year) - Five weeks’ rent.
This covers damages or defaults on the part of the tenant during the tenancy.
Security Deposit (per tenancy. Rent of £50,000 or over per year) - Six weeks’ rent.
This covers damages or defaults on the part of the tenant during the tenancy.
Unpaid Rent
Interest at 3% above the Bank of England Base Rate from Rent Due Date until paid in order to pursue non-payment of rent. Please Note: This will not be levied until the rent is more than 14 days in arrears.
Lost Key(s) or other Security Device(s)
Tenants are liable to the actual cost of replacing any lost key(s) or other security device(s). If the loss results in locks needing to be changed, the actual costs of a locksmith, new lock and replacement keys for the tenant, landlord any other persons requiring keys will be charged to the tenant. If extra costs are incurred there will be a charge of £15 per hour (inc. VAT) for the time taken replacing lost key(s) or other security device(s).
Variation of Contract (Tenant’s Request) - £50 (inc. VAT) per agreed variation.
To cover the costs associated with taking landlord’s instructions as well as the preparation and execution of new legal documents.
Change of Sharer (Tenant’s Request) - £50 (inc. VAT) per replacement tenant or any reasonable costs incurred if higher.
To cover the costs associated with taking landlord’s instructions, new tenant referencing and Right-to-Rent checks, deposit registration as well as the preparation and execution of new legal documents.
Early Termination (Tenant’s Request)
Should the tenant wish to leave their contract early, they shall be liable to the landlord’s costs in re-letting the property as well as all rent due under the tenancy until the start date of the replacement tenancy. These costs will be no more than the maximum amount of rent outstanding on the tenancy.
IF YOU HAVE ANY QUESTIONS ON OUR FEES, PLEASE ASK A MEMBER OF STAFF.
Client Money Protection (CMP) is provided by: Propertymark www.propertymark.co.uk
Independent Redress Provided by: The Property Ombudsman www.tpos.co.uk